BOURGOIN JALLIEU
27 RUE LOUIS BRAILLE

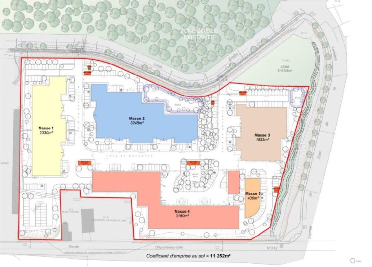
Locaux d’activité A VENDRE de 6 302 m² divisibles à partir de 187 m² PARC DES OLIVIERS

Nous vous proposons à Bourgoin Jallieu, plusieurs cellules d’activités disponibles à la vente dans un parc d’activités. Chaque lot dispose de bureaux et de places de stationnement privatives. Le parc se situe dans un environnement dynamique à proximité de l’autoroute A43 et de la D1006, ce qui lui permet d’être facilement accessible.

Type de bien
Surface
Référence

Surface RDC : 5489,89 m²

Surface terrain : 31969

Equipements entrepôts : 218 places VL
137 m² de stationnement deux roues

Étage Bâtiment Type Surfaces Disponibilité Loyer Charges Honoraires Fiscal Bail Révision annuelle Prix Charges Honoraires Fiscal Paiement Loyer lot Coworking
1 Masse 2 Bureaux 111,09
RDC Masse 2 Activités 398,8
RDC Masse 2 Bureaux 114,67
Masse 2 Parkings
Total Cellule Masse 2A Masse 2 Masse 2A Activités 624,56 1 507,7 HD HT/m² Masse 2A
1 Masse 2 Bureaux 23,25
RDC Masse 2 Activités 167,63
RDC Masse 2 Bureaux 25,66
Masse 2 Parkings
Total Cellule Masse 2B1 Masse 2 Masse 2B1 Activités 216,54 1 508,5 HD HT/m² Masse 2B1
1 Masse 2 Bureaux 25,43
RDC Masse 2 Activités 168,72
RDC Masse 2 Bureaux 27,69
Masse 2 Parkings
Total Cellule Masse 2B2 Masse 2 Masse 2B2 Activités 221,84 1 505,14 HD HT/m² Masse 2B2
1 Masse 2 Bureaux 22,05
RDC Masse 2 Activités 170,5
RDC Masse 2 Bureaux 24,32
Masse 2 Parkings
Total Cellule Masse 2C1 Masse 2 Masse 2C1 Activités 216,87 1 524,65 HD HT/m² Masse 2C1
1 Masse 2 Bureaux 22,05
RDC Masse 2 Activités 172,52
RDC Masse 2 Bureaux 24,32
Masse 2 Parkings
Total Cellule Masse 2C2 Masse 2 Masse 2C2 Activités 218,89 1 523,82 HD HT/m² Masse 2C2
1 Masse 2 Bureaux 70,45
RDC Masse 2 Activités 359,93
RDC Masse 2 Bureaux 72,15
Masse 2 Parkings
Total Cellule Masse 2D Masse 2 Masse 2D Activités 502,53 1 473,05 HD/m² Masse 2D
1 Masse 2 Bureaux 70,45
RDC Masse 2 Activités 561,87
RDC Masse 2 Bureaux 72,15
Masse 2 Parkings
Total Cellule Masse 2E Masse 2 Masse 2E Activités 704,47 1 431,93 HD HT/m² Masse 2E
1 Masse 2 Bureaux 70,45
RDC Masse 2 Activités 361,89
RDC Masse 2 Bureaux 72,15
Masse 2 Parkings
Total Cellule Masse 2F Masse 2 Masse 2F Activités 504,49 1 472,28 HD HT/m² Masse 2F
1 Masse 2 Bureaux 33,38
RDC Masse 2 Activités 197,66
RDC Masse 2 Bureaux 34,71
Masse 2 Parkings
Total Cellule Masse 2G Masse 2 Masse 2G Activités 265,75 1 511,57 HD HT/m² Masse 2G
1 Masse 4 Bureaux 22,68
RDC Masse 4 Activités 140,49
RDC Masse 4 Bureaux 24,33
Masse 4 Parkings
Total Cellule Masse 4B Masse 4 Masse 4B Activités 187,5 1 514 HD HT/m² Masse 4B
1 Masse 4 Bureaux 22,68
RDC Masse 4 Activités 140,49
RDC Masse 4 Bureaux 24,33
Masse 4 Parkings
Total Cellule Masse 4C Masse 4 Masse 4C Activités 187,5 1 514 HD HT/m² Masse 4C
1 Masse 4 Bureaux 22,94
RDC Masse 4 Activités 140,49
RDC Masse 4 Bureaux 25,14
Masse 4 Parkings
Total Cellule Masse 4D Masse 4 Masse 4D Activités 188,57 1 513,63 HD HT/m² Masse 4D
1 Masse 4 Bureaux 22,68
RDC Masse 4 Activités 170,49
RDC Masse 4 Bureaux 24,33
Masse 4 Parkings
Total Cellule Masse 4F Masse 4 Masse 4F Activités 217,5 1 505,17 HD HT/m² Masse 4F
1 Masse 4 Bureaux 22,07
RDC Masse 4 Activités 171,47
RDC Masse 4 Bureaux 24,33
Masse 4 Parkings
Total Cellule Masse 4G Masse 4 Masse 4G Activités 217,87 1 505,08 HD HT/m² Masse 4G
1 Masse 4 Bureaux 81,63
RDC Masse 4 Activités 374,52
RDC Masse 4 Bureaux 24,91
Masse 4 Parkings
Total Cellule Masse 4H Masse 4 Masse 4H Activités 481,06 1 508,08 HD HT/m² Masse 4H
1 Masse 4 Bureaux 22,07
RDC Masse 4 Activités 167,1
RDC Masse 4 Bureaux 24,33
Masse 4 Parkings
Total Cellule Masse 4I Masse 4 Masse 4I Activités 213,5 1 524,94 HD HT/m² Masse 4I
1 Masse 4 Bureaux 22,07
RDC Masse 4 Activités 173,9
RDC Masse 4 Bureaux 24,33
Masse 4 Parkings
Total Cellule Masse 4J Masse 4 Masse 4J Activités 220,3 1 522,63 HD HT/m² Masse 4J
1 Masse 4 Bureaux 22,07
RDC Masse 4 Activités 173,9
RDC Masse 4 Bureaux 24,33
Masse 4 Parkings
Total Cellule Masse 4K Masse 4 Masse 4K Activités 220,3 1 522,63 HD HT/m² Masse 4K
1 Masse 4 Bureaux 22,07
RDC Masse 4 Activités 167,1
RDC Masse 4 Bureaux 24,33
Masse 4 Parkings
Total Cellule Masse 4L Masse 4 Masse 4L Activités 213,5 1 524,94 HD HT/m² Masse 4L
1 Masse 4 Bureaux 81,23
RDC Masse 4 Activités 373
RDC Masse 4 Bureaux 24,91
Masse 4 Parkings
Total Cellule Masse 4M Masse 4 Masse 4M Activités 479,14 1 508,32 HD HT/m² Masse 4M
Total 6 302,68 m²
12
3
3
4
4
10
14
10
4
3
3
3
3
3
7
4
4
4
4
7

Autoroute A43
Aéroport Lyon St Exupéry à 24 km

Plan de situation

Votre contact Sorovim

Valentin PAGE
04.78.89.26.36 06.69.59.21.96

Contactez-nous

« * » indique les champs nécessaires

Ce champ n’est utilisé qu’à des fins de validation et devrait rester inchangé.