ZI DES FOUGERES
Locaux d’activité A VENDRE de 2 829 m² divisibles à partir de 205 m²
Nous vous proposons à la vente dans un futur parc d’activités des cellules d’activités à partir de 205 m². Chaque cellule bénéficiera d’une mezzanine et de parkings privatifs. Le parc se situera à Saint-Just dans une zone d’activités à taille humaine à proximité de Bourg en Bresse et de l’autoroute A40.
Locaux livrés bruts. Bureaux aménageables à la demande.
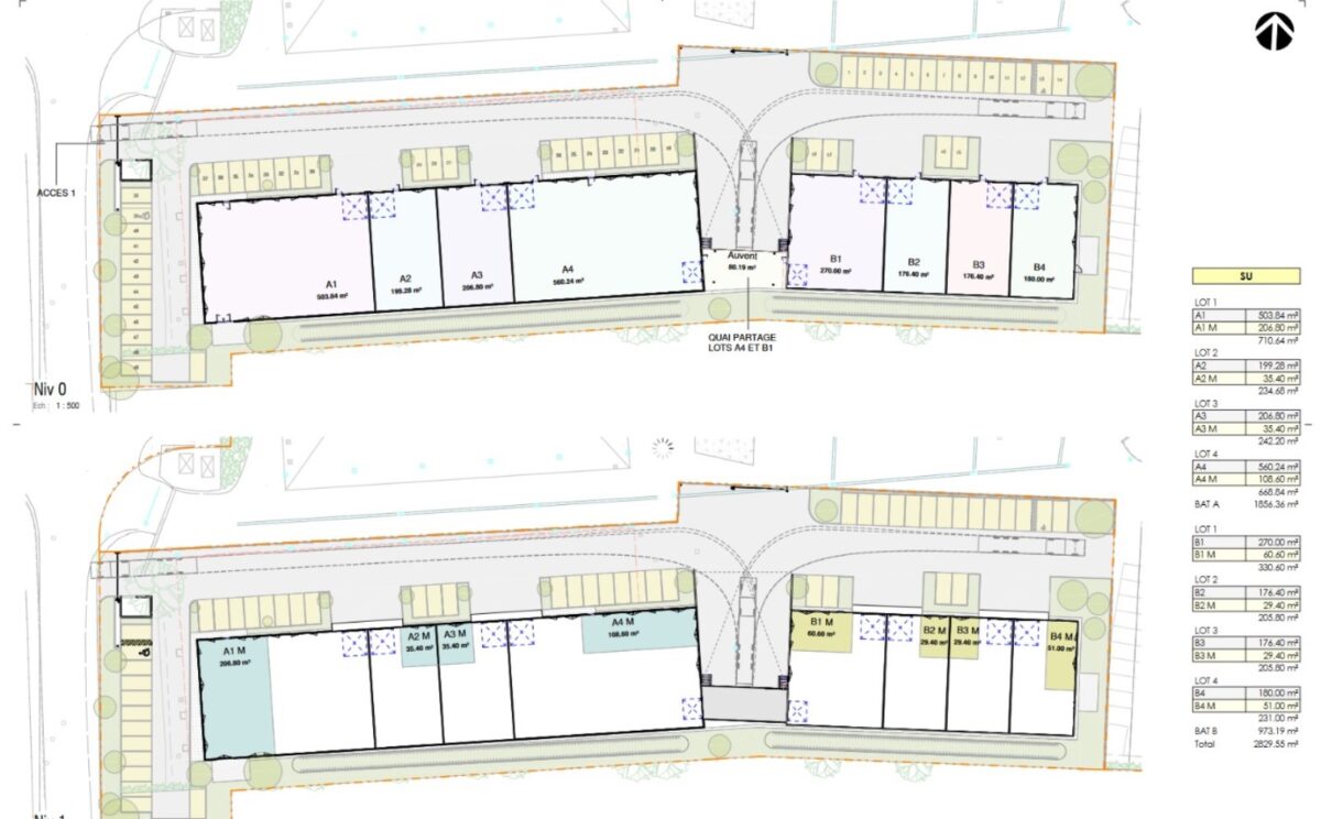
Surface RDC : 2829,56 m²
Résistance sol : 2 T/m²
Nbr de portes à quai : 1
Nbr de portes plain pied : 1
Equipements entrepôts : Eclairage zénithal par réflecteurs LED
1 quai PL partagé entre les lots A4 et B1
Tarif jaune
Mezzanine livrée brute avec garde corps et escalier métallique
Murs périmétriques : Double bardage
Couverture : Bac acier
| Étage | Bâtiment | Type | Surfaces | Disponibilité | Loyer | Charges | Honoraires | Fiscal | Bail | Révision annuelle | Prix | Charges | Honoraires | Fiscal | Paiement Loyer | lot | Coworking | |
|---|---|---|---|---|---|---|---|---|---|---|---|---|---|---|---|---|---|---|
| RDC | Bâtiment A | Activités | 503,84 | 3% HT du prix de vente HT, à la charge de l’acquéreur | TVA et frais de notaire réduits | |||||||||||||
| Mezzanine | Bâtiment A | Mezzanine | 206,8 | 3% HT du prix de vente HT, à la charge de l’acquéreur | TVA et frais de notaire réduits | |||||||||||||
| Bâtiment A | Parkings | – | 3% HT du prix de vente HT, à la charge de l’acquéreur | TVA et frais de notaire réduits | ||||||||||||||
| Total Cellule A1 | Bâtiment A A1 | Activités | 710,64 | 1 322,22 HT HD/m² | 3% HT du prix de vente HT, à la charge de l’acquéreur | TVA et frais de notaire réduits | A1 | |||||||||||
| RDC | Bâtiment A | Activités | 199,28 | 3% HT du prix de vente HT, à la charge de l’acquéreur | TVA et frais de notaire réduits | |||||||||||||
| Mezzanine | Bâtiment A | Mezzanine | 35,4 | 3% HT du prix de vente HT, à la charge de l’acquéreur | TVA et frais de notaire réduits | |||||||||||||
| Bâtiment A | Parkings | – | 3% HT du prix de vente HT, à la charge de l’acquéreur | TVA et frais de notaire réduits | ||||||||||||||
| Total Cellule A2 | Bâtiment A A2 | Activités | 234,68 | 1 322,61 HT HD/m² | 3% HT du prix de vente HT, à la charge de l’acquéreur | TVA et frais de notaire réduits | A2 | |||||||||||
| RDC | Bâtiment A | Activités | 206,8 | 3% HT du prix de vente HT, à la charge de l’acquéreur | TVA et frais de notaire réduits | |||||||||||||
| Mezzanine | Bâtiment A | Mezzanine | 35,4 | 3% HT du prix de vente HT, à la charge de l’acquéreur | TVA et frais de notaire réduits | |||||||||||||
| Bâtiment A | Parkings | – | 3% HT du prix de vente HT, à la charge de l’acquéreur | TVA et frais de notaire réduits | ||||||||||||||
| Total Cellule A3 | Bâtiment A A3 | Activités | 242,2 | 1 321,29 HT HD/m² | 3% HT du prix de vente HT, à la charge de l’acquéreur | TVA et frais de notaire réduits | A3 | |||||||||||
| RDC | Bâtiment A | Activités | 560,24 | 3% HT du prix de vente HT, à la charge de l’acquéreur | TVA et frais de notaire réduits | |||||||||||||
| Mezzanine | Bâtiment A | Mezzanine | 108,6 | 3% HT du prix de vente HT, à la charge de l’acquéreur | TVA et frais de notaire réduits | |||||||||||||
| Bâtiment A | Parkings | – | 3% HT du prix de vente HT, à la charge de l’acquéreur | TVA et frais de notaire réduits | ||||||||||||||
| Total Cellule A4 | Bâtiment A A4 | Activités | 668,84 | 1 321,12 HT HD/m² | 3% HT du prix de vente HT, à la charge de l’acquéreur | TVA et frais de notaire réduits | A4 | |||||||||||
| RDC | Bâtiment B | Activités | 270 | 3% HT du prix de vente HT, à la charge de l’acquéreur | TVA et frais de notaire réduits | |||||||||||||
| Mezzanine | Bâtiment B | Mezzanine | 60,6 | 3% HT du prix de vente HT, à la charge de l’acquéreur | TVA et frais de notaire réduits | |||||||||||||
| Bâtiment B | Parkings | – | 3% HT du prix de vente HT, à la charge de l’acquéreur | TVA et frais de notaire réduits | ||||||||||||||
| Total Cellule B1 | Bâtiment B B1 | Activités | 330,6 | 1 317,81 HT HD/m² | 3% HT du prix de vente HT, à la charge de l’acquéreur | TVA et frais de notaire réduits | B1 | |||||||||||
| RDC | Bâtiment B | Activités | 176,4 | 3% HT du prix de vente HT, à la charge de l’acquéreur | TVA et frais de notaire réduits | |||||||||||||
| Mezzanine | Bâtiment B | Mezzanine | 29,4 | 3% HT du prix de vente HT, à la charge de l’acquéreur | TVA et frais de notaire réduits | |||||||||||||
| Bâtiment B | Parkings | – | 3% HT du prix de vente HT, à la charge de l’acquéreur | TVA et frais de notaire réduits | ||||||||||||||
| Total Cellule B2 | Bâtiment B B2 | Activités | 205,8 | 1 316,44 HT HD/m² | 3% HT du prix de vente HT, à la charge de l’acquéreur | TVA et frais de notaire réduits | B2 | |||||||||||
| RDC | Bâtiment B | Activités | 176,4 | 3% HT du prix de vente HT, à la charge de l’acquéreur | TVA et frais de notaire réduits | |||||||||||||
| Mezzanine | Bâtiment B | Mezzanine | 29,4 | 3% HT du prix de vente HT, à la charge de l’acquéreur | TVA et frais de notaire réduits | |||||||||||||
| Bâtiment B | Parkings | – | 3% HT du prix de vente HT, à la charge de l’acquéreur | TVA et frais de notaire réduits | ||||||||||||||
| Total Cellule B3 | Bâtiment B B3 | Activités | 205,8 | 1 316,44 HT HD/m² | 3% HT du prix de vente HT, à la charge de l’acquéreur | TVA et frais de notaire réduits | B3 | |||||||||||
| RDC | Bâtiment B | Activités | 180 | 3% HT du prix de vente HT, à la charge de l’acquéreur | TVA et frais de notaire réduits | |||||||||||||
| Mezzanine | Bâtiment B | Mezzanine | 51 | 3% HT du prix de vente HT, à la charge de l’acquéreur | TVA et frais de notaire réduits | |||||||||||||
| Bâtiment B | Parkings | – | 3% HT du prix de vente HT, à la charge de l’acquéreur | TVA et frais de notaire réduits | ||||||||||||||
| Total Cellule B4 | Bâtiment B B4 | Activités | 231 | 1 323,29 HT HD/m² | 3% HT du prix de vente HT, à la charge de l’acquéreur | TVA et frais de notaire réduits | B4 | |||||||||||
| Total | 2 829,56 m² | |||||||||||||||||
|
11 4 4 12 5 3 3 4 |
||||||||||||||||||
Informations de vente
Prix activité : 1 280 euros HT HD/m²
Prix bureaux : 1 280 euros HT HD/m²
Prix parking : 2 500 euros HT HD/U
Garantie financière d’achèvement inclus
Autoroute A40
Route D979
SNCF Gare de Bourg en Bresse