VAULX EN VELIN
5 CHEMIN DU CATUPOLAN

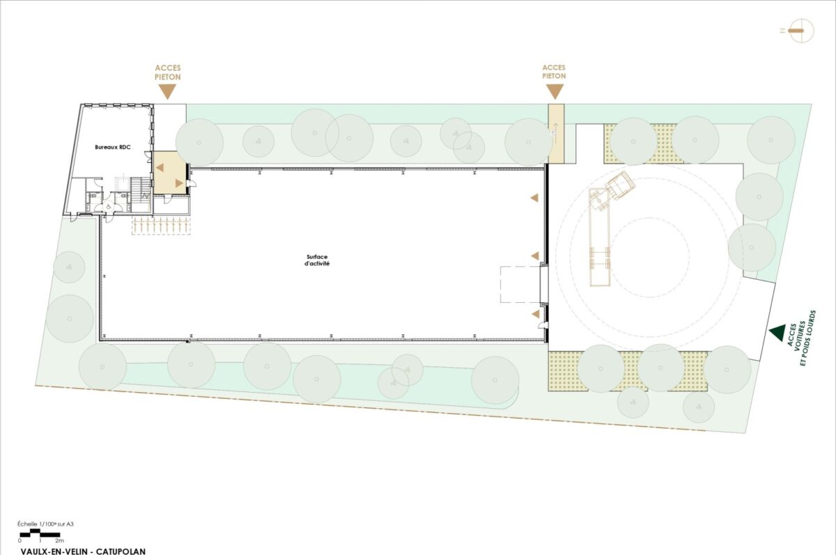
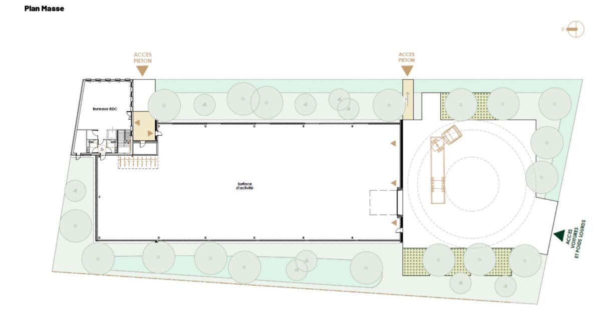
Locaux d’activité A VENDRE de 1 441 m² non divisibles

Exclusivité

Nous avons le plaisir de vous proposer à la vente un bâtiment d’activité clé en main, d’une superficie de 1 441 m², idéalement situé le long du Boulevard Urbain Est, à proximité immédiate de l’arrêt Catupolan du futur Tramway T9. Ce site bénéficie d’une puissance installée de 83 kWc. À seulement 1 km du pôle multimodal de « Vaulx-en-Velin La Soie », cet emplacement stratégique garantit une accessibilité exceptionnelle et un environnement dynamique pour votre entreprise.

Type de bien
Surface
Référence

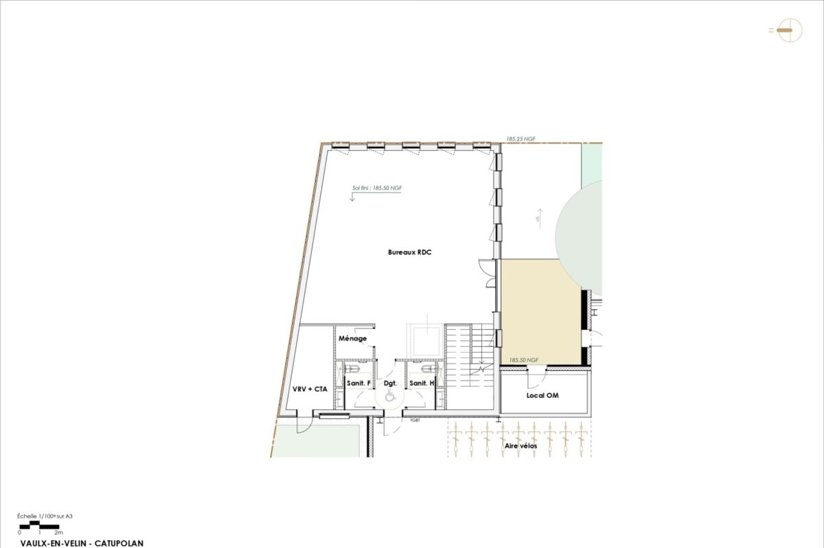
Bureaux livrés aménagés

Hauteur libre : 2.7 m

Charges : 350 kg/m² (compris cloisonnement)

Immeuble indépendant

Surface terrain : 3497

Haut. libre max. ss poutre : 6,5 m

Résistance sol : 3 T/m²

Nbr de portes plain pied : 1

Equipements entrepôts : 1% d’ouverture en toiture (désenfumage)
Panneaux photovoltaïques
Puissance installée :83 kWc

Ossature : Métallique

Murs périmétriques : Double bardage

Étage Bâtiment Type Surfaces Disponibilité Loyer Charges Honoraires Fiscal Bail Révision annuelle Prix Charges Honoraires Fiscal Paiement Loyer lot Coworking
Activités 1 122 3% HT du prix de vente HT, à la charge de l’acquéreur
Bureaux 319 3% HT du prix de vente HT, à la charge de l’acquéreur
Parkings 3% HT du prix de vente HT, à la charge de l’acquéreur
Total Cellule Activités 1 441 2 262,32 HT HD/m² 3% HT du prix de vente HT, à la charge de l’acquéreur
Total 1 441 m²
10

Autoroute Périphérique Laurent Bonnevay
Autoroute Rocade Est
Route Boulevard des Droits de l’Homme
Aéroport Aéroport de Lyon-Bron
Aéroport Aéroport Lyon Saint-Exupéry
Métro Ligne A arrêt « Vaulx en Velin La Soie » à 1km
Tram T3/T7 et Rhône Express à 1 km
Bus Arrêt « Marius Grosso » à 300 m

Plan de situation

Votre contact Sorovim

Jean-Christophe SERBONNET
04.78.89.26.36 06.03.06.28.49

Contactez-nous

« * » indique les champs nécessaires

Ce champ n’est utilisé qu’à des fins de validation et devrait rester inchangé.