RUE PIERRE FALLION
Bureaux A VENDRE de 109 m² non divisibles
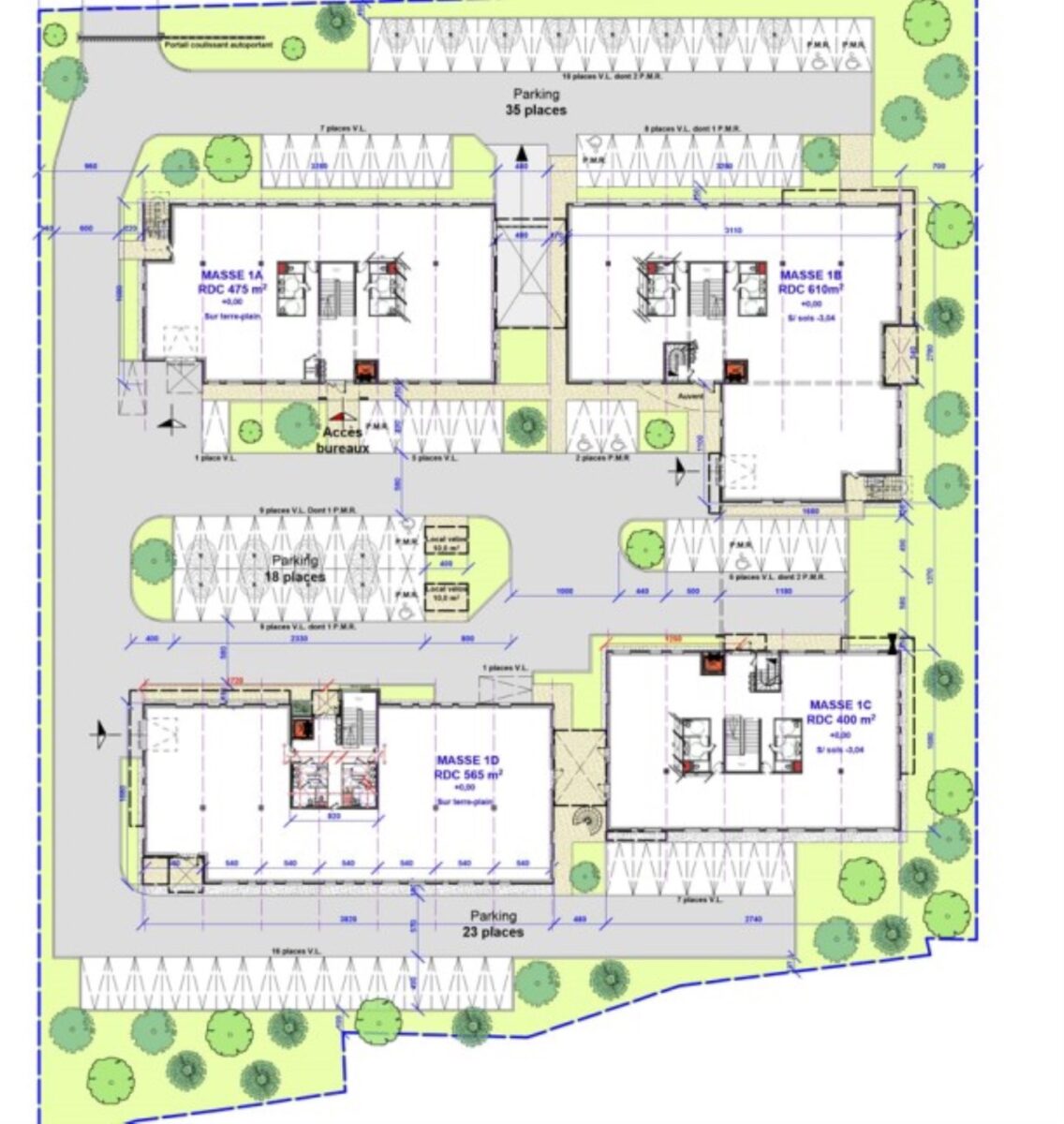
Nous vous proposons à la vente des bureaux de différentes surfaces au sein d’un programme neuf sur la commune de Rillieux-la-Pape. Le Parc des Écureuils offrira un environnement de travail avantageux et agréable grâce à ses espaces verts ainsi qu’à la qualité des prestations de ses bâtiments.
Aménagements en fonction du cahier des charges.
ERP : 5ème catégorie
Immeuble neuf de bureaux
Immeuble sécurisé (Contrôle d’accès.)
Ascenseur
Accès PMR
Bureaux livrés aménagés, non cloisonnés
Cloisonnement à la demande
Hauteur sous Plafond : 3m
Luminaires faux plafond encastrés 600 x 600 basse luminance
Climatisation et chauffage par pompe à chaleur
Double vitrage
Sanitaires communs
Terrasse privative pour certains lots
Parking extérieur et en sous-sol en sus
1 parking/ 35 m2
Les informations sur les risques auxquels ce bien est exposé sont disponibles sur le site Géorisques http://www.georisques.gouv.fr.
| Étage | Bâtiment | Type | Surfaces | Disponibilité | Loyer | Charges | Honoraires | Fiscal | Bail | Révision annuelle | Prix | Charges | Honoraires | Fiscal | Paiement Loyer | lot | Coworking | |
|---|---|---|---|---|---|---|---|---|---|---|---|---|---|---|---|---|---|---|
| 1 | 1B 5 | Bureaux | 109 | 2 150 HD/m² | 27 HT/m²/an | 3% HT du prix de vente HT/HD en sus à la charge de l’acquéreur. | TVA et frais de notaire réduits | 5 | ||||||||||
| Total | 109 m² |
Informations de vente
Parking extérieur 4.000 euros/HT/l’unité
Parking intérieur 15.000 euros/HT/l’unité
La surface indiquée est une surface locative ( Carrez sur plan + Quote part des parties communes)
SNCF Gare de Rillieux Sathonay à 200m
Bus Lignes 9 – 33 et 77